Перед проектированием изучите участок. Если пропустить этот этап, сооружение может оказаться неудобным и дорогим в эксплуатации: появится сырость, холод, проблемы с фундаментом. Ниже рассказываем, какие факторы помогут выбрать место для жилого строения при планировке участка 7 соток или другой площади.

Источник: freepik.com

Источник: freepik.com
Когда определились с местом для строительства, можно приступать к созданию плана. В инструкции показываем, как самому нарисовать проект дома на компьютере. При работе учтем основные параметры будущего здания: этажность, расположение помещений и особенности конструкции. Показывать проектирование будем на примере приложения Мой Дом 3D — это простой, но функциональный софт с русскоязычным интерфейсом.
Начните с создания фундамента. Нарисуйте стены мышкой по сетке или задайте точные размеры цифрами. Также можно выбрать готовый проект здания и вносить изменения уже в него.
В программе получится задать тип фундамента и отрегулировать высоту относительно уровня земли: это удобно, если сооружение будет стоять на сваях. Если планируете цоколь или подвал, добавьте новый уровень во вкладке «Этажи» и постройте план помещений. Также можно настроить внешний вид фундамента: выбрать материал отделки и задать масштаб текстуры. В каталоге есть самые распространенные варианты: кирпич, бетон, натуральный или искусственный камень.

Проект сделан в приложении Мой Дом 3D
Источник: AMS Software
При создании плана задайте толщину стен: для несущих конструкций больше, для перегородок меньше. Подберите внешнюю отделку — в программе есть разные виды камня, штукатурки, сайдинга, деревянных панелей. Для кирпичных стен доступен конструктор кладки: можно настроить цвет шва, тип перевязки и размер элементов.
Перед тем, как сделать проект дома самостоятельно, сориентируйте его по сторонам света. Это поможет правильно распределить помещения с учетом естественного освещения. Кухню, санузел и котельную лучше располагать рядом или друг над другом, если предусмотрен второй этаж. Так будет проще провести коммуникации. Прихожую желательно делать с тамбуром — он снижает теплопотери зимой и помогает сохранять прохладу летом. Также на первом этаже стоит предусмотреть гардеробную, кладовую, гостиную и столовую.
Обратите внимание на ширину коридоров: комфортный минимум — около 90 см. Слишком узкие проходы будут неудобны в повседневной жизни. Вход лучше дополнить крыльцом или небольшой террасой: это защитит дверь от осадков.
Во время того, как создаете проект дома сами, спроектируйте и интерьер. В программе доступен каталог с мебелью, техникой и декором для разных комнат: это поможет продумать современный дизайн. Также есть разные типы лестниц: они пригодятся, если планируете строить частный дом со вторым этажом, подвалом или мансардой. Настраивается количество ступеней, ширина марша, длина конструкции, габариты площадки и материалы каждой детали. Проем под лестницу приложение создает автоматически.

Проект сделан в приложении Мой Дом 3D
Источник: AMS Software
В программе можно добавить полноценный второй этаж или мансарду. Чтобы упростить работу, удобно скопировать план первого уровня, а затем внести изменения. Настройки этажей могут отличаться: например, софт позволяет выбрать разную внешнюю отделку.
На верхнем уровне обычно размещают спальни, детские и кабинет. Если этажей несколько, для удобства предусмотрите санузел на каждом из них. При проектировании полноценного второго этажа важно, чтобы несущие стены располагались друг над другом. Без опоры снизу конструкцию придётся усиливать, а это усложняет и удорожает строительство. На втором этаже можно сделать балкон, но разместите его так, чтобы он не затенял окна в нижних помещениях.
Если вы думаете, как самостоятельно спроектировать дом с мансардой, добавьте ее на этапе планирования крыши. Скаты одновременно формируют стены комнат, поэтому полезная площадь здесь меньше, чем на первом этаже. Это стоит учитывать при планировке и расстановке мебели.

Проект сделан в приложении Мой Дом 3D
Источник: AMS Software
На этапе настройки укажите, какое пространство будет под крышей — чердак или мансарда. В программе доступно несколько конструкций: двускатная, вальмовая, ломаная, плоская, пирамидальная, многощипцовая и другие. Выберите подходящий вариант в зависимости от особенностей будущего загородного дома. Самый популярный тип крыши — двускатная: она проста в реализации и подходит для большинства строений. Вальмовая лучше защищает от ветра, но сложнее в устройстве. Ломаную часто выбирают для мансард, чтобы увеличить полезное пространство.
Когда выберете конфигурацию, настройте основные параметры: высоту конька, уровень стен этажа и форму конструкции. При необходимости стандартные параметры можно изменить уже после добавления крыши. Получится, например, добавить точки на плане и скорректировать геометрию. Чтобы разобраться, как придать поверхности идеальную форму, можно посмотреть видеоурок для новичков.
Если вы изучаете, как самому сделать проект дома на компьютере, важно правильно подобрать кровельный материал. Популярнее всего металлочерепица или мягкая кровля: они универсальны и подходят для большинства проектов. Но в каталоге есть и другие варианты — керамика, профлист, ондулин, шифер.

Проект сделан в приложении Мой Дом 3D
Источник: AMS Software
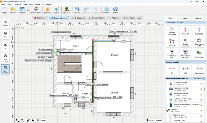
На этапе проектирования важно сразу продумать расположение всех инженерных систем. Это поможет избежать переделок и упростит монтаж в будущем. Софт позволяет проложить трубы отопления и водоснабжения, спланировать электропроводку, расставить розетки, выключатели и светильники. В интерфейсе удобно переключаться между разными типами коммуникаций и этажами, чтобы элементы не перекрывали друг друга. Ниже рассказываем, что можно настроить.

Проект сделан в приложении Мой Дом 3D
Источник: AMS Software
Мы разобрали, как нарисовать проект плана дома самому от базовых шагов до детальной проработки. Сначала проведите инженерно-геологические работы, проанализируйте рельеф, розу ветров и специфику освещения. Затем определите архитектурные особенности будущего здания: тип фундамента, наличие цоколя или мансарды, расположение комнат. Перенесите план на компьютер и проработайте его подробнее. В этом поможет программа Мой Дом 3D. В ней можно продумать всё: от конструкции здания до отделки, интерьера и инженерных систем.